新店速递|美洛士全屋定制洛阳展厅,归纳高定轻奢糊口体例!

新店速递▼
展(zhan)馆设(she)计(ji):焦作(zuo)想不到世家美洛(luo)士轻(q💛ing)奢(she)风格展(zhan)馆设(she)计(ji)
路(lu)线:陕西新乡市
范围:120㎡
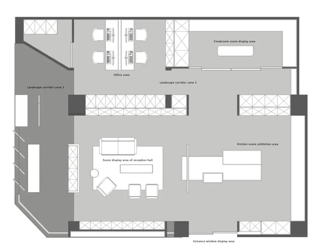
💧 展览厅总(zong)体(ti)(ti)目标(biao)(biao):隅间环境总(zong)体(♔ti)(ti)目标(biao)(biao)日常任务室
立体计划▼

美洛士洛阳轻奢展厅位♐于竟然之家(王(wang)城店),以"阡陌织语"的设想理念,分(fen)化成几个洄游(you)动线的组合,并构成五个场景(jing)地(di)区来散布(bu),同时(shi)融入(ru)高(gao)品德仿古石材、金属、烤ඣ(kao)漆等质(zhi)感(gan)元素营建(jian)出轻(qing)奢感(gan)。
强调低奢形象的同一,也通报会着美洛士安康、新势力、价廉的产品原则立场,认真为开支者供求平衡积极主动往右、安康优质化、青年态的一坐式家装订制休会。01
Landscape corridor
景观小品楼梯道
-




景(jing)观廊(lang)道(dao)首要(yao)揭(jie)示(shi)一些从属性的♌(de)定制产物(wu)(偏轴门、入户玄关柜、无(wu)框门),用简略纯洁的(de)设想说话(冰面、玉轮、倒影、树影、垂柳、黯淡无(wu)光)和(he)场景(jing)化的(de)体例来揭(jie)示(shi)一种(zhong)具备诗(shi)意和(he)设想容纳度(du)的(de)空间气质(zhi)。
02
LIVING ROOM
会客堂空间
-



03
DINING ROOM
餐厨空间
-



04
CLOAK ROOM
衣帽间
-



05
OFFICE ZONE
办公区
-




存眷微信公家号